特色
房屋特色:稀缺户型,灵动空间,配置齐全。
户型配套
-
热水器
-
冰箱
-
空调
-
电视
-
洗衣机
-
桌椅
-
衣柜
-
洗手间
-
厨房
-
电梯
-
床
-
电磁炉
-
沙发
-
油烟机
红璞服务
-
专职管家
-
定期保洁
-
智能门锁
-
代收快递
-
高速WI-FI
-
移动支付保修
交通导航
交通便利,步行10分钟即到横琴新家园公交站。或步行5分钟到横琴中央汇美食广场有共享汽车及共享单车点,方便前往各地点。
周边配套
-
餐饮
项目自身配套商业街,将引进知名餐饮。周边有横琴中央汇美食广场及海里鲜餐厅,可满足日常餐饮需求。
-
娱乐
项目自身配套休闲共享空间、户外运动场、室内羽毛球场、健身房等。周边有长隆海洋王国、星乐度露营小镇、中影国际影城(横琴庞都店)、琴海KTV、狮门娱乐天地、适度运动工作室等。
-
购物
项目将引进知名便利店,周边有乐购、美宜佳便利店、励骏广场、横琴购口岸商业广场等
-
其他
周边配套设施完善,有公园、便民设施、横琴幼儿园、横琴小学、横琴一中、珠海市人民医院横琴医院等。
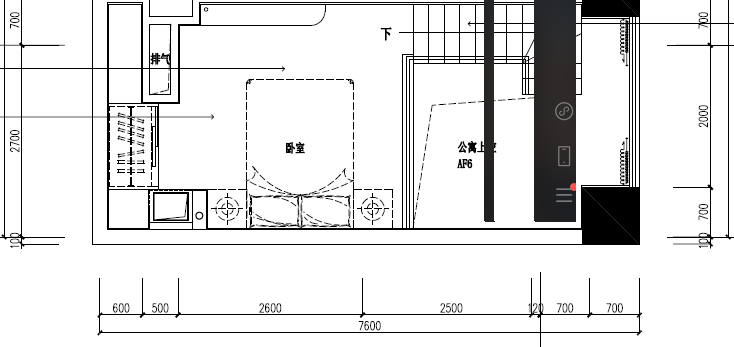
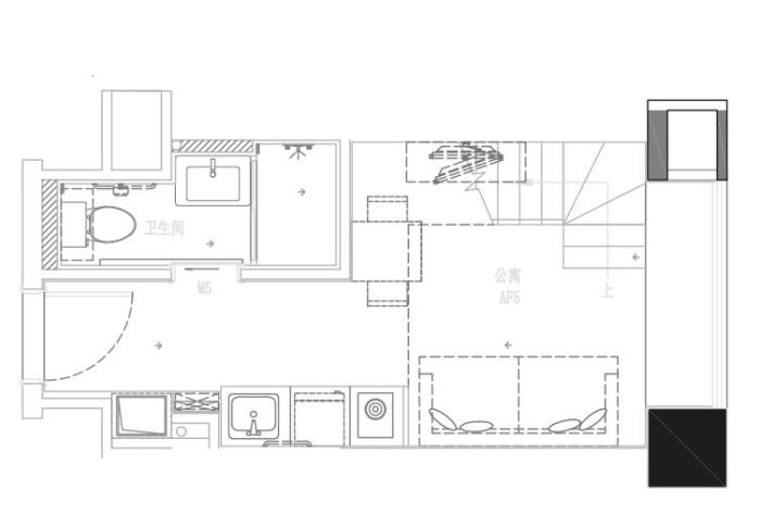
精选户型




横琴微信